House Around a Tree, Wolfsberg

Photos: Paul Ott

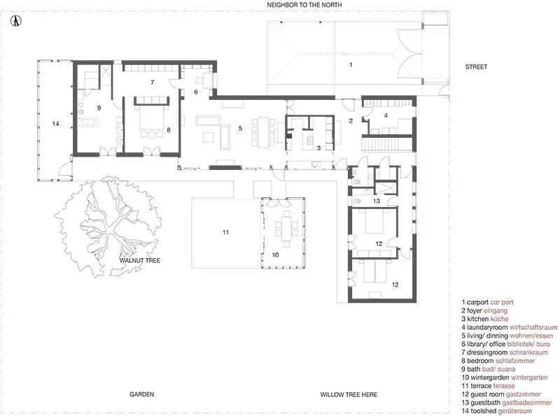
Located on a large square plot on the edge of a town, this house on one level became an exercise in creating various degrees of privacy. Hermetic to the street, the L-shaped building is arranged around a magnificent walnut tree and opens up to the garden. A carefully placed seasonal garden pavilion helps to create another layer of privacy between the wings of the house adding a refined variety of spatial zones. The pavilion extends the time for sitting in the garden during spring and fall. The main spaces are organized within a rectangular configuration. The east wing intended for family visits may have a future use as an office or quarters for a live-in caretaker. This house was conceived around a collection of furniture, carpets and artefacts which reflects the inhabitants’ lifelong passion for art and design.